ART 5 Beispiel 12
Ein Wohntraum aus Bauhaus
und Behaglichkeit
Klare Architektur trifft Gemütlichkeit
Im Sommer 2014 war es so weit: Marisa und Andreas bezogen ihr Architektenhaus – ein skulptural anmutendes Betongebäude im Geist der Bauhauslehre. Der moderne Charakter entsprach ihren Vorstellungen, das Design war aussergewöhnlich, und auch die Zusammenarbeit mit dem Architekten verlief reibungslos. Und doch beschlich beide nach dem Einzug das Gefühl, dass etwas nicht passte. „Wir wollten es nicht wahrhaben, aber das Haus hatte keine Seele. Es war wie ein Museum, durchgestylt bis ins Detail und gnadenlos unnachgiebig gegenüber Unordnung. Mit kleinen Kindern war das kaum zu bewältigen“, erinnert sich das Unternehmerpaar.
Die Wendung kam ein paar Jahre später an Weihnachten. „Nach gefühlt endloser Zeit des Stillstands hatten wir ein neues Grundstück mit Bestandsgebäude gekauft – die Sanierung stand für mich nicht zur Diskussion, und Fertighäuser waren nie von Interesse für uns. Wir waren also wieder an einem Punkt, an dem wir nicht weiterkamen. Und dann kam HUF. Als wir über die Feiertage ein HUF Haus im Fernsehen sahen, waren wir begeistert vom Design und der Klarheit der Architektur. Trotzdem wirkte es behaglich“, erinnert sich Andreas.
Das Zusammenspiel aus klarer Linienführung, Reduktion auf das Wesentliche und höchster Ausführungsqualität überzeugte nicht nur den architekturbegeisterten Familienvater. Nach Besuchen im HUF Dorf und weiteren Musterhäusern – bei Tag wie bei Nacht – startete das Paar voller Begeisterung erneut in die Planung.
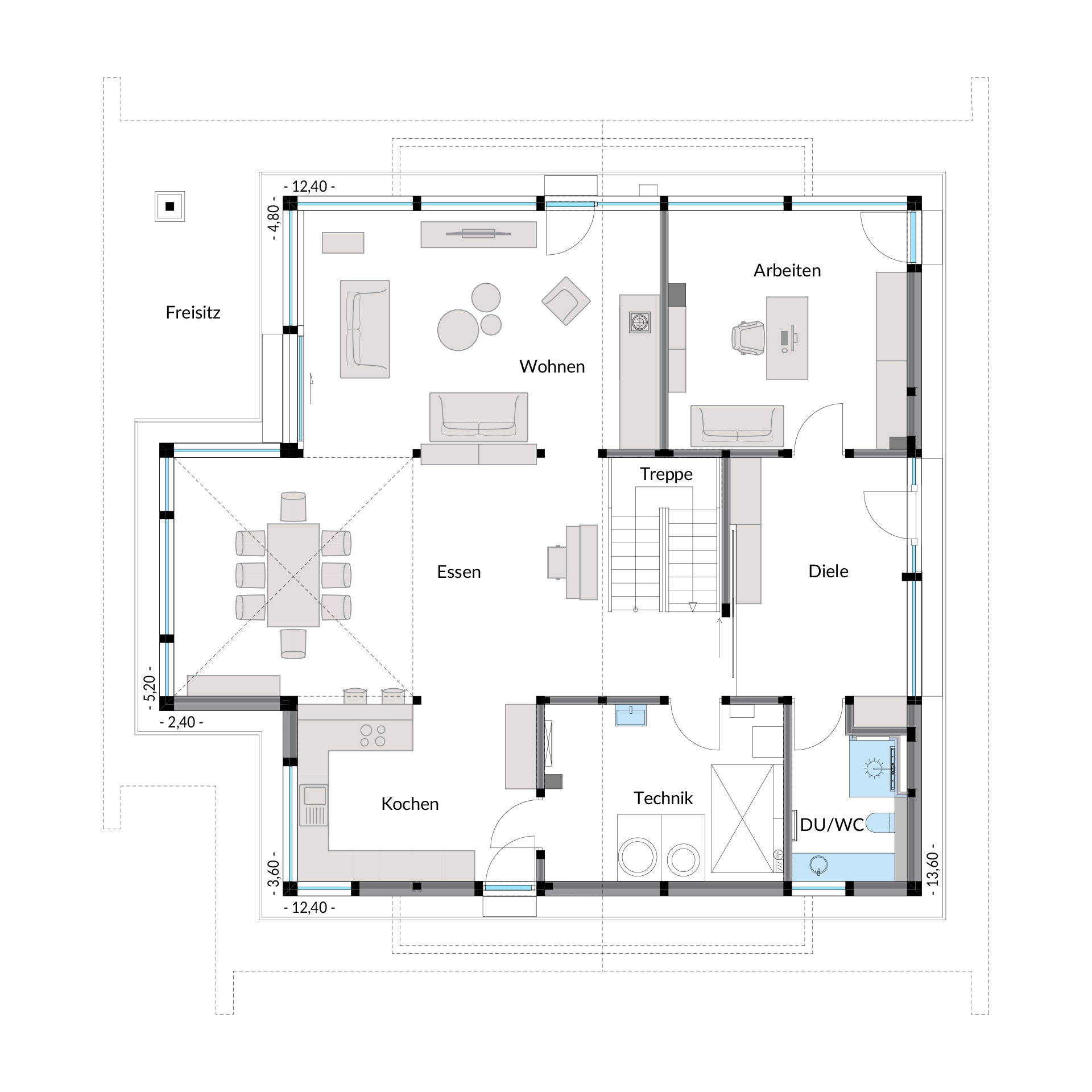
Daten zum Haus

Leben mit der Natur
Das neue Für-Immer-Zuhause: eine Hommage an die Prinzipien des Bauhauses. Eine Hommage an die eigenen Bedürfnisse.
Zusammen mit den Architekten aus dem Westerwald entstand ein grosszügiges HUF Haus ART 5, dessen Charakter die persönlichen Eigenschaften seiner Bewohner widerspiegelt: klar und strukturiert, einladend und offen, familienorientiert und kommunikativ. Wer hier zu Gast sein darf, spürt instinktiv, wie viel Liebe und Gedanken in jeden Zentimeter des (Aussen-)Raums geflossen sind. Die rahmenlos ins Glas eingelassene Haustür aus eleganten, massiven Eichenholzleisten setzt ein markantes Statement, während das Fischgrät-Parkett angenehme Wärme ausstrahlt und als Design-Highlight den Ton für das gesamte Interieur vorgibt.
Im Entree nach rechts gewandt, öffnet sich das gemeinsam genutzte Familienzimmer – ein flexibler Raum zum Spielen, Arbeiten oder Entspannen. Von hier führt der Weg in den offenen Wohn- und Essbereich mit stilvoller Küche, in dem fließende Übergänge und grosszügige Sichtachsen die besondere Energie des Hauses spürbar machen. Im lichtdurchfluteten Erker mit großem Esstisch entfaltet sich die Verbindung von innen und außen auf eindrucksvolle Weise.
„Unser Haus verträgt viel Leben – genau das war unser Wunsch. Der Grundriss steht für Gastfreundschaft und bietet zugleich Rückzugsorte für jedes Familienmitglied. Während sich die Wege über die Galerie im Obergeschoss trennen, finden wir am nächsten Morgen wieder zusammen: beim Frühstück am großen Tisch oder entspannt auf dem Sofa“, erzählt das Paar.
Immer im Blick: die umliegende Natur. Der herrlich angelegte Garten mit altem Baumbestand, schimmerndem Pool, Schwimmteich und Sauna macht das Wohnerlebnis perfekt – ob beim Grillen im Regen unter den geschützten Flächen des weiten Dachüberstands oder beim morgendlichen Aufwachen mit Blick auf die Baumwipfel und die Wolken am Himmel.
Weitere Beispiele















