ART 6 Beispiel 8
Ausflug ins Grüne
Die Geschichte zum Haus
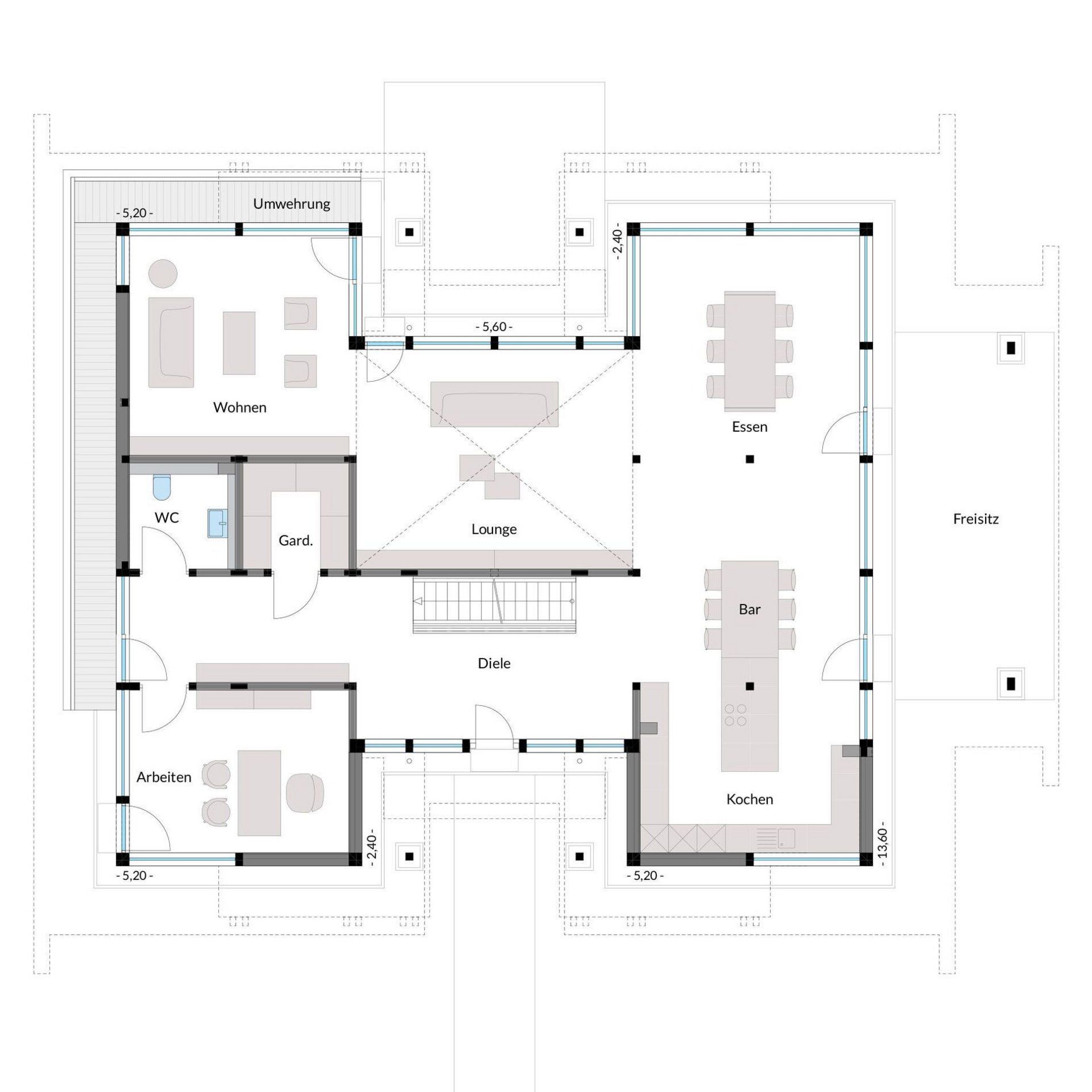
Im Grün hoher Bäume setzt das weisse Fachwerkhaus mit dem Doppelpultdach markante Akzente. Im Erdgeschoss wandert der Blick ungehindert vom Foyer über den Essbereich und das Wohnzimmer bis in die offene Küche. Mehr als 163 m² Raumgrundfläche stehen allein hier zur Verfügung.
Im Dachgeschoss mit Elternschlafzimmer und zwei Kinderzimmern sorgen schützende Wände für Intimität und ungestörten Schlaf. Und im Untergeschoss befinden sich außer dem professionellen Homeoffice der Spa-Bereich mit Sauna und Fitnessraum.
Die herrschaftlich anmutende Anlage macht das Haus zu einer Insel natürlichen Wohnens – mitten in der Stadt.
Daten zum Haus

Freiluftgeniesserherz
Entschleunigung im eigenen Paradies
Außerhalb des Hauses entfaltet sich ein sommerlicher Lebensraum, dessen Anordnung und Großzügigkeit jedes Herz höherschlagen lässt.
 Die mit edlem Holz beplankte Terrassenlounge mit Sonnensegel lädt tagsüber zur Siesta und am Wochenende zur Fiesta mit netten Gästen ein.
 Ein Sprung ins blaue Wasser des Pools entschädigt für so manch harten Arbeitstag.
Weitere Beispiele

























