ART 6 Beispiel 6
Fachwerk-Villa mit
Gartenparadies
Die Geschichte zum Haus
In diesem weissen Traumhaus trifft Design auf höchste Ansprüche an Wohnqualität. Ein lichtdurchflutetes Haus, ganzheitlich entworfen nach minimalistischen Prinzipien. Mit klaren Linien und einer wiederkehrenden Formensprache – von der Hausarchitektur bis zu den Einrichtungsdetails und der Aussengestaltung.
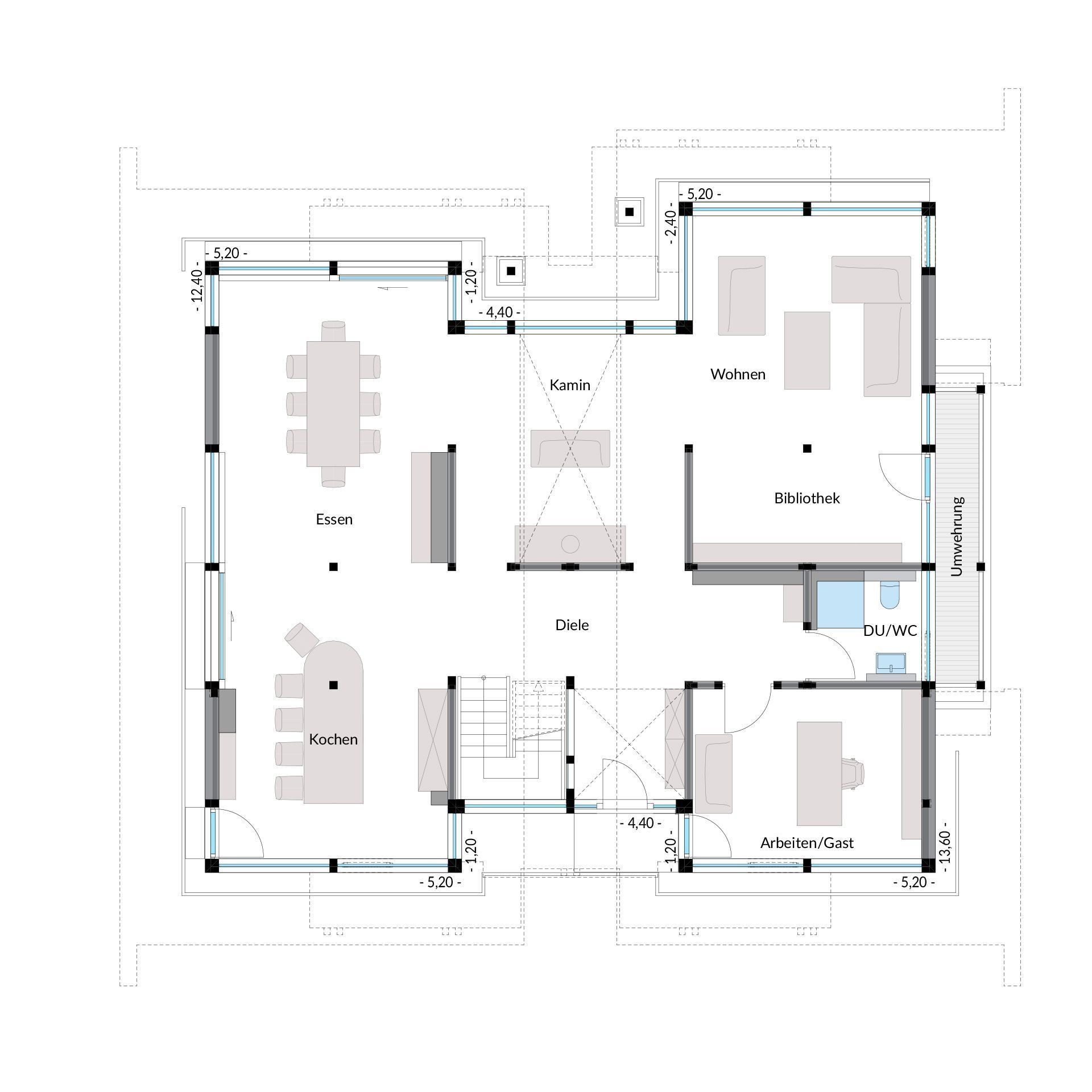
Die beiden Pultdächer prägen die Silhouette des Hauses und sind durch ein Flachdach in der Mitte verbunden. Durch den freien Grundriss im Erd- und Dachgeschoss kommen so facettenreiche Lichtachsen zustande, die alle Räume mit gesundem Tageslicht versorgen.
Daten zum Haus

Stilvolle Gemütlichkeit
100 % HUF HAUS
Das Ensemble aus Aussenbereich, Fachwerkhaus und Interior trägt die persönliche Handschrift der Bewohner,
die sich bei der Umsetzung ihrer Wünsche auf den lückenlosen Service von HUF HAUS verlassen haben:
„Alles aus einer Hand – das war ein wichtiges Entscheidungskriterium für uns. Insofern haben wir dann auch wirklich alles was ging mit HUF und der HUF Firmengruppe umgesetzt.“
Zur Leistungskette gehört auch die Planung und Realisierung des HUF Kellers.
Das zum Wohnbereich ausgebaute, helle Untergeschoss beherbergt einen Fitnessraum mit Sauna und Whirlpool-Wanne sowie einen imposanten Weinkeller. Die Leidenschaft für edle Tropfen teilt der Bauherr mit seinem erwachsenen Sohn, der als Kunst- und Weinhändler gerne auf eine Verkostung vorbeischaut.
Weitere Beispiele























