ART Sonder Beispiel 7
Luft und Licht für die Lücke
Auf den Leib geschneidert
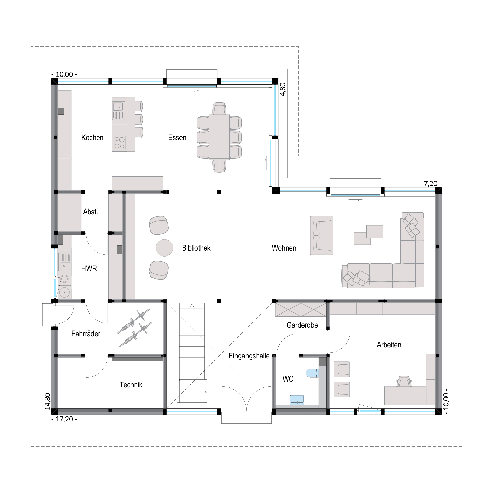
Am Rand der Londoner Metropole, dort, wo sich urbane Dichte allmählich in Ruhe auflöst, durchbricht die markante Silhouette eines HUF Fachwerkhauses das vertraute englische Straßenbild. Als maßgeschneiderter Architektenentwurf wurde dieses Holz-Glas-Gebäude präzise in die Baulücke eingefügt – mit seitlichen Abständen von lediglich 1,26 Metern zur linken und 1,53 Metern zur rechten Grundstücksgrenze.
Wie so häufig in begehrten Lagen Englands musste zunächst das Bestandsgebäude weichen: ein dreigeschossiges Haus im Tudor-Stil. Für Architekt Peter Huf kam ein Volumen gleicher Größe jedoch nicht infrage. „Ich habe mich bewusst für zwei Geschosse entschieden, damit das Haus trotz klarer Präsenz leicht und elegant wirkt. Die gefüllte Lücke wirkt gleichzeitig als Durchbruch. Gleich beim Eintreten sieht der Bewohner seinen Garten. Lediglich die Haustüre trennt den sogenannten “Vorhof” vom “Hinterhof““, erklärt Huf.
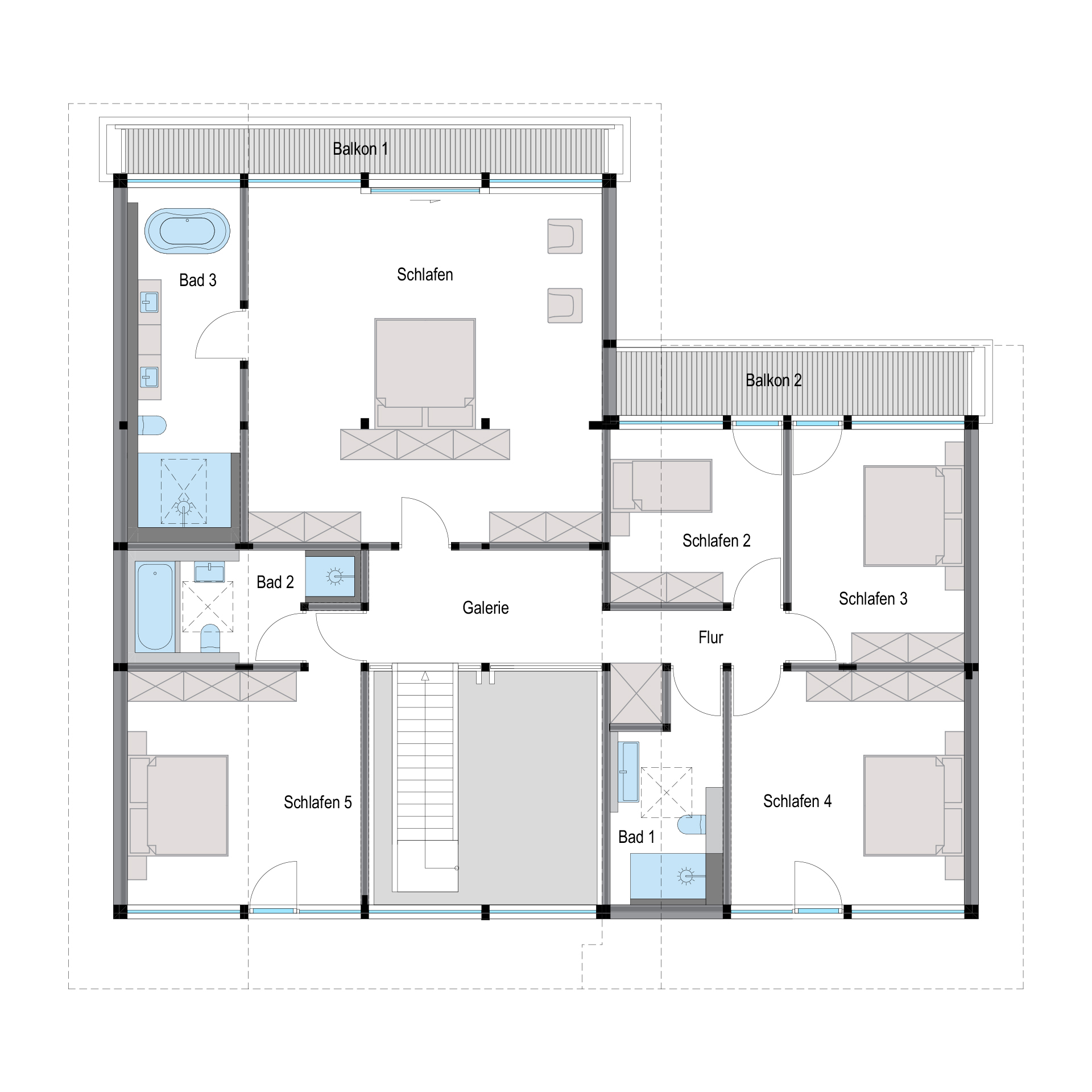
Die planerische Herausforderung bestand darin, die begrenzte Fläche optimal zu nutzen, den Bedürfnissen einer vierköpfigen Familie gerecht zu werden und zugleich möglichst viel Tageslicht ins Innere zu lenken. Klassischerweise geschieht dies über alle Seiten eines Baukörpers – doch die enge Nachbarbebauung erforderte eine kreativere Lösung. Die Dachkonstruktion wurde gezielt geöffnet, um das Licht von oben tief ins Haus zu führen. Das geknickte Flachdach, vom Architekten gerne als „Welle“ bezeichnet, bringt Bewegung in die klar strukturierte Fassade und verleiht der modernen Fachwerkkonstruktion zusätzliche Leichtigkeit
Daten zum Haus

Architektur & Kunst
Dunkle Wände und viel Tageslicht
„Ob drinnen oder draußen – man ist immer Teil des Außenraums. Der Blick nach draußen ist jederzeit präsent. Das ist eines der größten Highlights des Hauses und unsere tägliche Quelle der Freude“, so das Ehepaar.
Im Inneren setzt ein bewusst dunkles Farbkonzept einen spannungsvollen Kontrapunkt zur lichtdurchfluteten Architektur. Dunkle Wände in speziellem Lehmputz lassen die Konstruktion optisch zurücktreten und lenken den Blick nach außen sowie auf ausgewählte Kunstwerke und Materialien. Der Eichenparkettboden mit sichtbaren Ästen und natürlichen Unregelmäßigkeiten bringt Wärme und Tiefe ins Raumgefüge und bildet einen sinnlichen Gegenpol zur präzisen Fachwerkkonstruktion aus dem Westerwald.
Die maßgefertigte Küche greift diese leisen, edlen Töne auf. Ihre Fronten sind nach der japanischen Technik Shou Sugi Ban behandelt – einer traditionellen Methode des kontrollierten Holzverkohlens, die eine außergewöhnliche Oberfläche mit markanter Haptik entstehen lässt. „Wir umgeben uns gerne mit einzigartigen Dingen. Die skulpturalen Pflanzgefäße aus Beton unter der Treppe stammen aus den Niederlanden, und das Kreuz im Schlafzimmer haben wir auf einem lokalen Antiquitätenmarkt entdeckt“, erzählt der Bauherr.
Kunst, Möbel und persönliche Objekte wurden über Jahre hinweg gesammelt und bewusst kuratiert. Sie stammen aus unterschiedlichen kulturellen Kontexten, Ländern und Epochen und verwandeln das Haus in eine persönliche Kunstausstellung, die die Handschrift ihrer Bewohner trägt.
Weitere Beispiele























