Flachdach Beispiel 8
Bauhaus-Villa mit Gartenblick
Dieses moderne Einfamilienhaus aus Holz und Glas verbindet klare Architektur mit einer starken Nähe zur Natur. Grosszügige Fensterflächen öffnen das Haus zum Garten und lassen viel Tageslicht in die Räume. Die Kombination aus natürlicher Holzfassade, geradliniger Formensprache und transparenten Glasfronten schafft eine zeitlose und elegante Wohnatmosphäre.
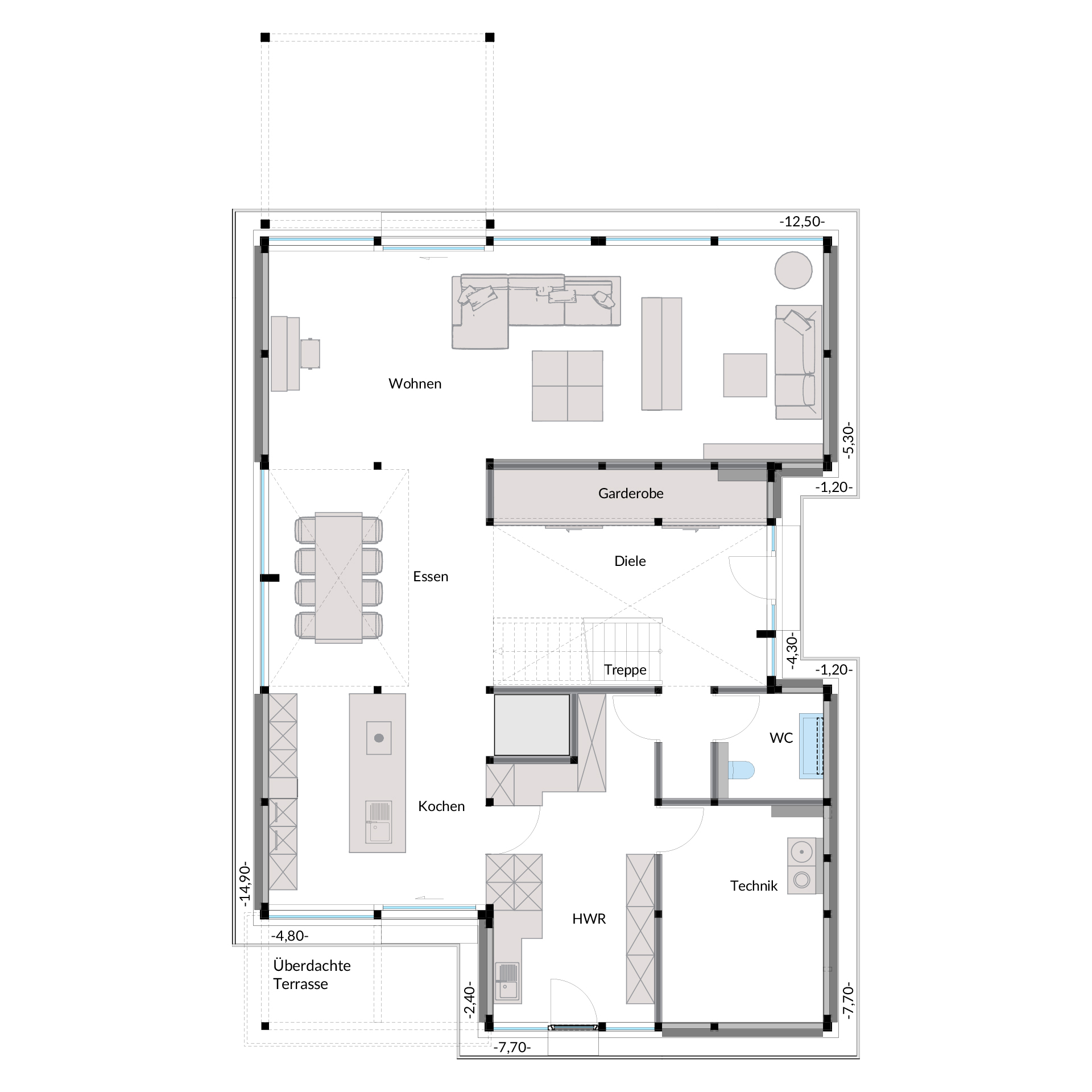
Im Erdgeschoss bildet der offene Wohn-, Koch- und Essbereich das Herzstück des Hauses. Von hier aus eröffnet sich der Blick in den Garten und auf die großzügige Terrasse. Die fliessenden Übergänge zwischen Innen- und Außenbereich sorgen für ein besonderes Wohngefühl und verbinden Architektur und Natur auf harmonische Weise.
Daten zum Haus

Inspiration der Sinne
Garten und Aussenbereich als Erweiterung des Wohnraums
Der grosszügig gestaltete Garten unterstreicht die moderne Bauhaus-Architektur des Hauses und bietet viel Raum für Erholung im Freien. Gepflegte Grünflächen, stilvolle Bepflanzung und klare Wegeführungen schaffen eine ruhige und harmonische Atmosphäre rund um das Haus. Ein Wasserlauf mit kleinen Fontänen setzt zusätzliche gestalterische Akzente und sorgt für eine entspannte, natürliche Umgebung.
Die überdachte Terrasse lädt dazu ein, warme Tage im Freien zu geniessen und den Blick in den Garten zu erleben. Durch die großen Glasflächen im Erdgeschoss entsteht eine direkte Verbindung zwischen Wohnraum und Außenbereich. So wird der Garten zu einem natürlichen Bestandteil des Wohnkonzepts und erweitert den Lebensraum des Hauses nach draussen.
Weitere Beispiele













