Flat roof sample 8
A Bauhaus villa immersed in nature
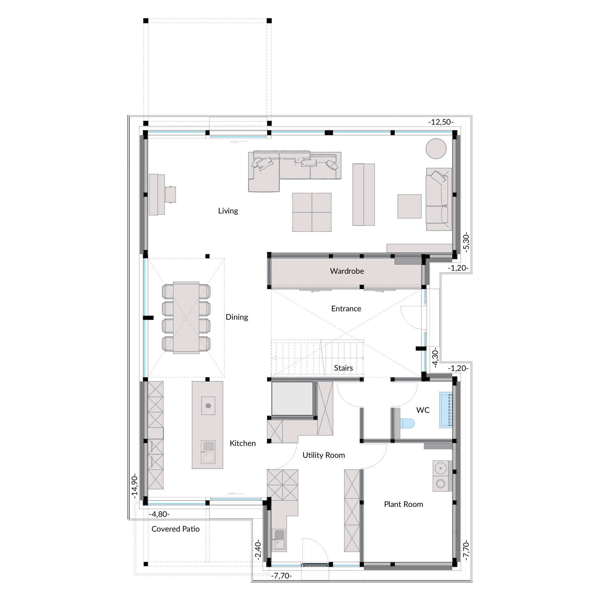
Set within a beautifully landscaped garden, this striking contemporary residence combines elegant post-and-beam architecture with a seamless connection to the natural environment. Crafted from warm timber and expansive floor-to-ceiling glass, the home is designed to maximise light, space, and views of the surrounding nature. On the ground floor, the open-plan kitchen and dining area form the heart of the home. From here, views and access extend out into the garden and spacious terrace - a fluid transition between indoor and outdoor living, creating an exceptional sense of openness and tranquility.
More details about the house

A sensory inspiration
Blurring boundaries: living beyond walls
The spacious garden follows the principles of Bauhaus design, complementing the home’s clear architectural language with structure, balance, and restraint. Precisely cut lawns, carefully composed planting, and linear pathways create a calm, ordered landscape that reflects the geometry of the house. A minimalist water feature with subtle fountains introduces movement and sound, adding a refined sensory dimension to the composition.
The covered terrace, in combination with the home’s expansive glazing, dissolves the boundary between inside and out. Floor-to-ceiling glass opens the living spaces towards the garden, allowing light, air, and nature to become integral elements of the architecture. In this way, the outdoor area is not conceived as separate, but as a continuation of the interior—an open, flowing living space that can be experienced throughout the year.
Other project samples













