Town house sample 1
The town house
History of the house
HUF HAUS illustrate apartments and town houses as an effective choice for builds in areas where land is proven costly. Whether it be a home to suit the needs of a growing family or a classic designed town house - HUF HAUS design and create real estate projects for both private individuals and Property Investors who want to secure themselves a lasting and significant investment.
Compact on the outside, generous on the inside
The quintessential appearance of a HUF HAUS is one of clean lines, openness and transparency. The HUF town houses share the same recognisable post and beam architecture and generous glazing to create a visual gateways to the surrounding environment and nature. The HUF house open plan living experience is one of freedom and space – regardless of plot size and proximity to the city.
More details about the house

Nature up close
Good neighbourhood relations
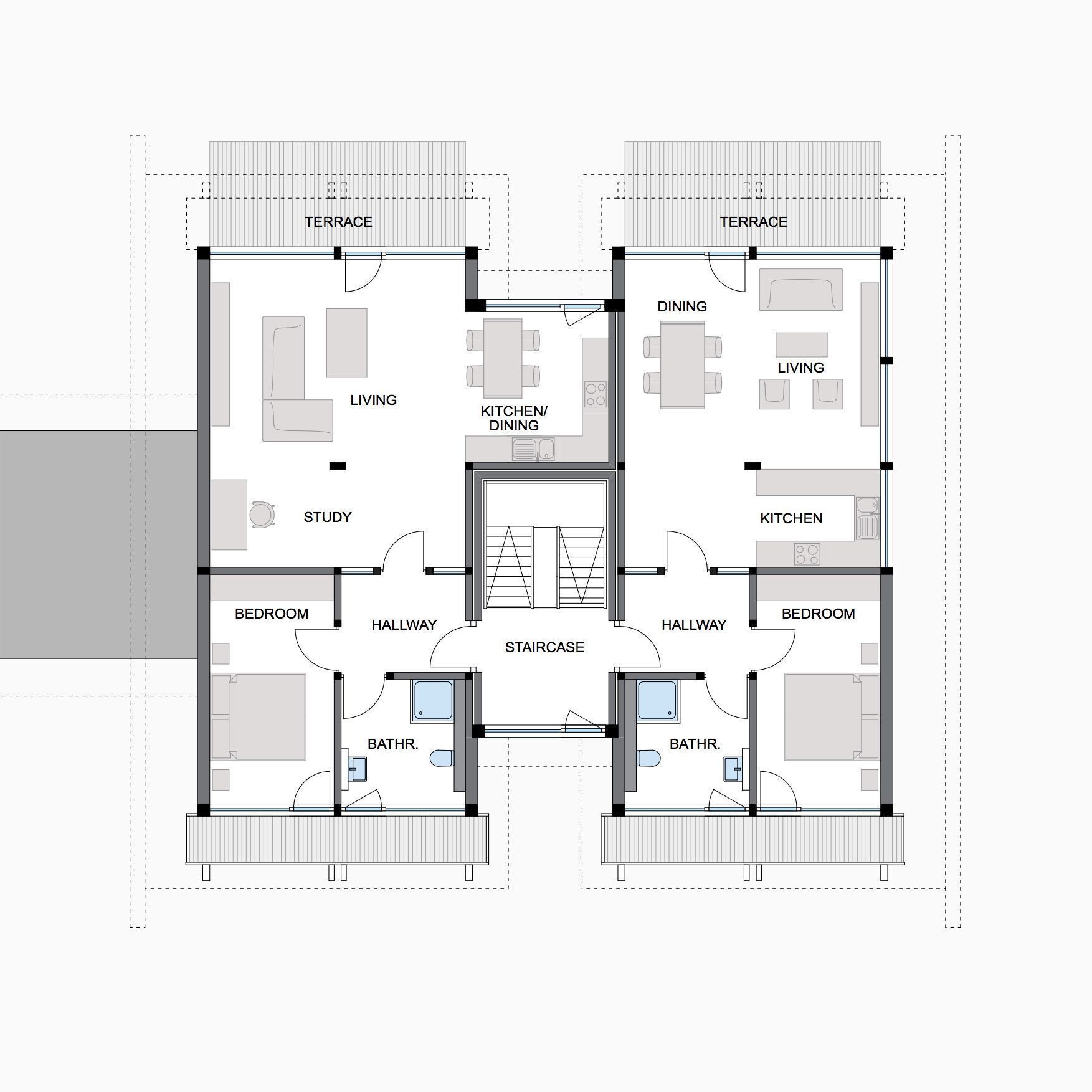
Communal yet secluded- HUF townhouses harmoniously create the seemingly contradictive lifestyle of private meeting communal with their experience in expressive design, as illustrated here.
The architecture maintains extraordinary open plan living ambience with generous floor plan.
Social spaces for residents are implemented; as ones neighbour is only a stone's throw away, it is ideal for communal spaces to be created.
Other project samples



















