ART Special sample 7
A HUF House shaped by air and light
Tailored to the gap
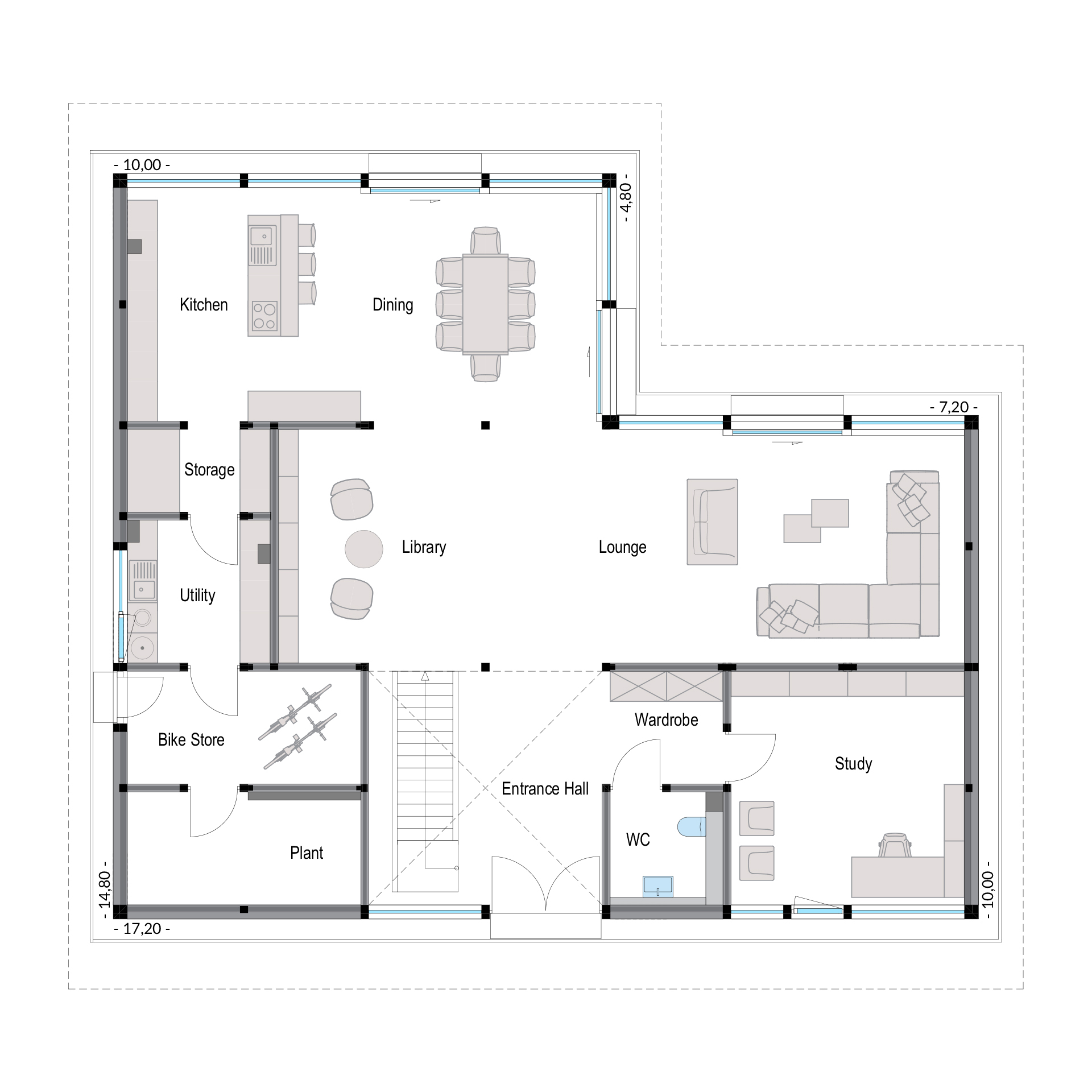
At the edge of the London metropolis – where urban density gradually gives way to calm – the striking silhouette of a post-and-beam house disrupts the familiar rhythm of the English streetscape. Designed as a bespoke replacement, this timber-and-glass building was tailored precisely to its narrow plot – with side setbacks of just 1.26 metres to the left and 1.53 metres to the right boundary.
As is often the case in sought-after locations in England, the existing building first had to make way: a three-storey house in the Tudor style. For architect Peter Huf, however, recreating a structure of the same volume was never an option. “I deliberately chose to design the house with two storeys so that, despite its clear presence, it would appear light and elegant. At the same time, the filled gap creates a visual breakthrough. Upon entering the house, the resident’s view immediately extends to the garden. Only the front door separates the so-called ‘forecourt’ from the ‘rear courtyard’,” he explains.
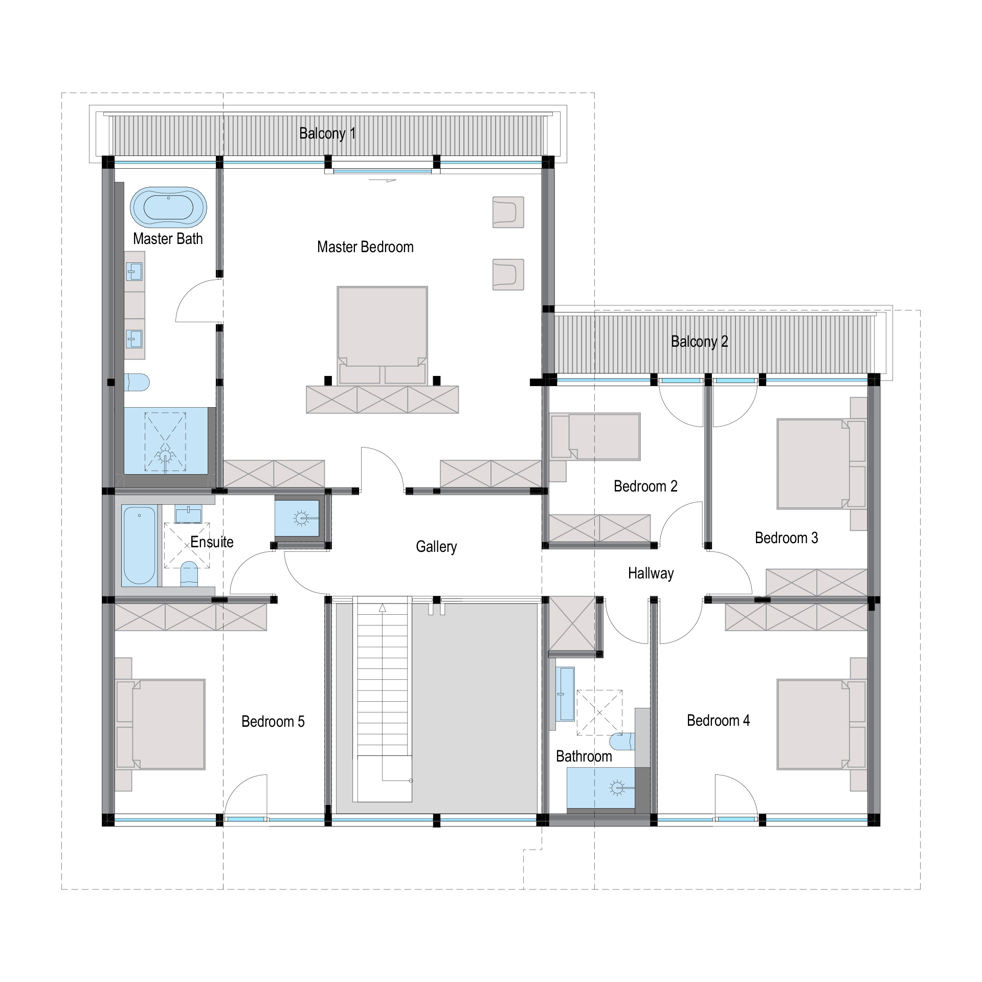
The central planning challenge lay in making optimal use of the limited footprint, accommodating the spatial needs of a family of four, and at the same time drawing as much natural light as possible into the interior. Traditionally, daylight would enter from all sides of a building – but the close neighbouring structures called for a more inventive solution. The roof structure was therefore deliberately opened up, allowing daylight to penetrate deep into the house from above. The folded flat roof, which the architect likes to refer to as a “wave,” introduces a sense of movement to the clearly structured façade and lends the modern timber-frame construction an added lightness.
More details about the house

Architecture & Art
Dark walls and lots of light
“Whether you’re inside or outside – you always feel part of the exterior. The view is constantly present. It’s one of the greatest qualities of the house and a daily source of joy for us,” the homeowners explain.
Inside, a deliberately dark colour palette forms a striking counterpoint to the light-filled architecture. Dark walls finished in a special clay plaster allow the structure to visually recede, directing attention outward as well as towards selected artworks and materials. Oak parquet flooring, with its knots and natural imperfections left visible, adds warmth and depth to the interior and provides a tactile contrast to the precision of the post-and-beam structure crafted in the Westerwald.
The bespoke kitchen by Holloways of London continues this restrained, refined material language. Its fronts are finished using the Japanese technique of Shou Sugi Ban – a traditional method of controlled wood charring that results in an exceptional surface with a distinctive tactile quality.
“We like to surround ourselves with unique pieces,” says the homeowner. “The sculptural concrete planters beneath the staircase come from the Netherlands, and the cross in the bedroom was discovered at a local antiques fair.”
Art, furniture and personal objects have been collected over many years and carefully curated. Originating from different cultural contexts, countries and eras, they transform the house into a highly personal collection – an architectural framework that carries the unmistakable signature of its inhabitants.
Other project samples























